
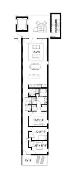
Don’t miss this rare pre-construction opportunity to customize your home in one of Downtown’s most unique residential developments. The Overlook is situated on W. Hill Avenue perched above the Tennessee River, and is just a short stroll or ride to the river and World’s Fair Park, bustling Gay Street and Market Square, the Theater District, the University of Tennessee, and Downtown’s extensive greenway system. This new development offers on-site parking with elevator access directly to a private terrace, spacious living rooms with high ceilings & glass walls opening onto generous balconies, elegant spa-like bathrooms, large operable windows in the bedrooms, wide, gracious hallways & attached private storage. Early buyers may choose among numerous configuration options including number of bedrooms, kitchen layout and optional ventless fireplace. Whether you prefer an urban traditional, warm modern, or refined industrial aesthetic, custom finish packages are available to reflect your individual style. Advanced options include dedicated car charging station, retractable insect screens for south-facing balconies and optional solar array. And for those looking for more space, two adjacent residences may be combined into a sprawling approx. 4200sf flat, with aprx. 3300sf interior and aprx. 900sf exterior living space. Now pre-selling with completion expected in Summer 2020. Total approx. size of aprx. 2100sf includes aprx. 1650sf interior & aprx. 450sf combined covered terrace space (2 separate terraces) is an estimate only for the configuration of 2 residences per floor. *Exterior siding is insulated metal panel. Approx. sizes are based on developer’s pre-construction floorplans and are not guaranteed. Buyer to verify size, taxes (TBD) and HOA fees (TBD). For more information, please visit the Knoxville Overlook development’s website.
Disclaimer: The information provided is intended for informational purposes only and is not intended to constitute an offer or solicitation. All information contained herein is believed to be accurate but neither the developer nor its agent make any representation, warranty, express or implied, regarding anything contained within this website. Prices, locations, features, finishes, specifications, community plans construction schedule and availability are subject to change without notice. All maps, floor plans, drawings and elevations are conceptual artist renderings, are not to scale and are for informational purposes only. All dimensions and specifications, including square footage, are estimates. Buyers should independently verify any information provided herein. This Disclaimer includes all marketing material for The Overlook, including, but not limited to the MLS, agent’s website and marketing outlets, the development’s website and printed marketing material. *All images are artistic renderings and are subject to change.
| Price: | 613,800 |
| Address: | 608 W Hill Ave |
| City: | Knoxville |
| State: | TN |
| Zip Code: | 37902 |
| Year Built: | 2020 |
| Square Feet: | 2,100 approx. sq.ft. |
| Bedrooms: | 3 |
| Bathrooms: | 2 |




